Sistemi integrati di Bonifica "in-situ"


WSR offre servizi di bonifica con metodologia in-situ mediante sistemi progettati e realizzati autonomamente. L'applicazione della metodologia "in-situ" presenta innumerevoli vantaggi, tra i quali è sen'altro possibile ricordare:

  • Impatto limitato sul sito (soprattutto in presenza di siti produttivi attivi)
  • Piena compatibilità con le attività commerciali ed industriali del sito
  • Sensibile riduzioni dei costi, dovuti all'assenza delle spese di smaltimento, trasporto e reinterro con nuovo materiale
  • Possibilità di trattare matrici ambientali a profondità non raggiungibili con operazioni di escavazione ordinarie
  • Possibilità di bonificare le varie matrici ambientali

Le principali tecnologie utilizzate sono:

  • SOIL VAPOR EXTRACTION (SVE)
  • BIOVENTING (BV)
  • BIOSLURPING (BSL)
  • MULTI PHASE EXTRACTION (MPE)
  • AIR SPARGING (AS)
  • PUMP & TREAT (P&T)

Bonifica In situ: alcuni esempi

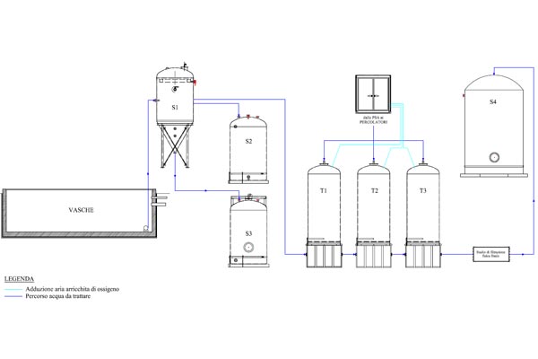
Bonifica In situ: impianti di trattamento acque

Bonifica In situ: impianti di trattamento acqua / gas

Bonifica In situ: autorizzazione impianto mobile trattamento acque

Autorizzazione impianto mobile (rif. DGR Lombardia n° 8/10098 del 07/08/2009) per rifiuti liquidi pericolosi e non pericolosi, tipicamente generati all’interno di stabilimenti e attività produttive. Operazioni di smaltimento autorizzate: D8 e D9